INFO
- Rilievo architettonico ed impiantistico
- Progettazione esecutiva architettonica
- Progettazione esecutiva impianti meccanici
- Progettazione esecutiva impianti elettrici e speciali
- Direzione lavori
- Collaudo impianti
- Pratiche edilizie
- Attestato Prestazione Energetica (APE)
- Ex Legge 10/91 (D.Lgs. n. 192/05)









DESCRIZIONE INTERVENTO:
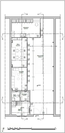
Il progetto in questione riguarda l'inserimento di una start-up all'interno di un edificio con stile industriale, con l'obiettivo di sviluppare tecnologie per la rimozione dall’atmosfera e lo stoccaggio sicuro e permanente di grandi quantità di CO2 .
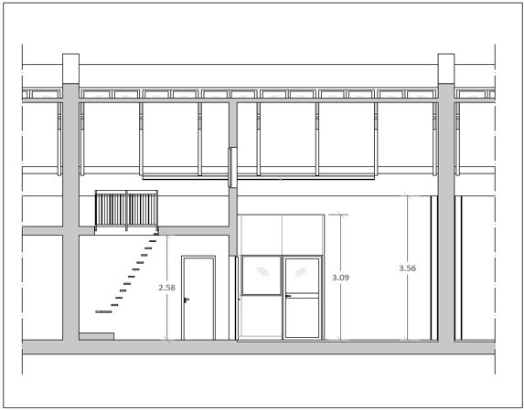
All'interno dell'edificio sono stati inseriti dei box rimovibili, con impianti a vista, non andando così ad intaccare in alcun modo le tamponature, e rendendo l'intervento reversibile al 100%, pur ottimizzando la distribuzione interna degli spazi ed i consumi energetici, con tecnologie di climatizzazione e ricambi d'aria all'avanguardia.
Il progetto è stato svolto interamente con l'ausilio della metodologia B.I.M. per analizzare l'intervento in ogni dettaglio.